Projekte
Team
Über uns
Job
Kontakt
+41(0)56 243 10 10
a.zehnder@az-architekten.ch
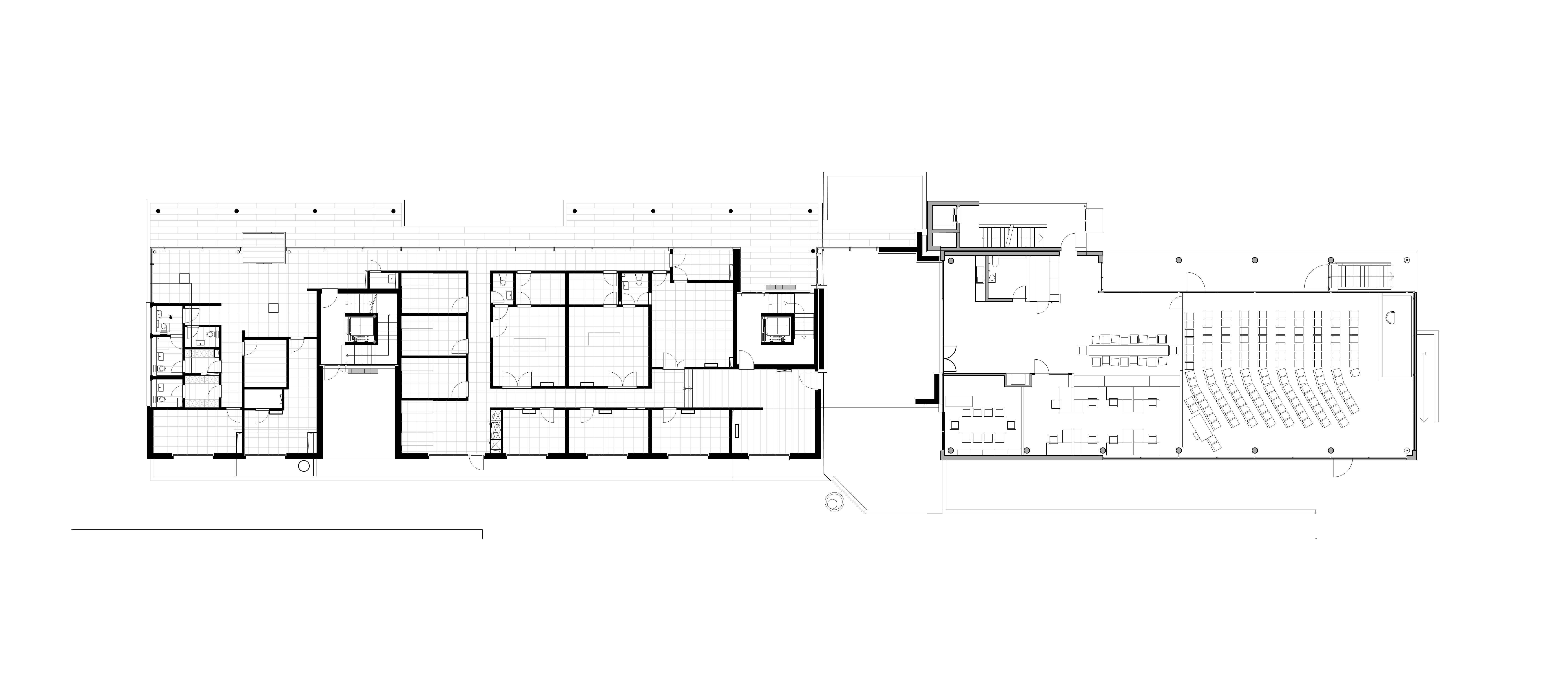
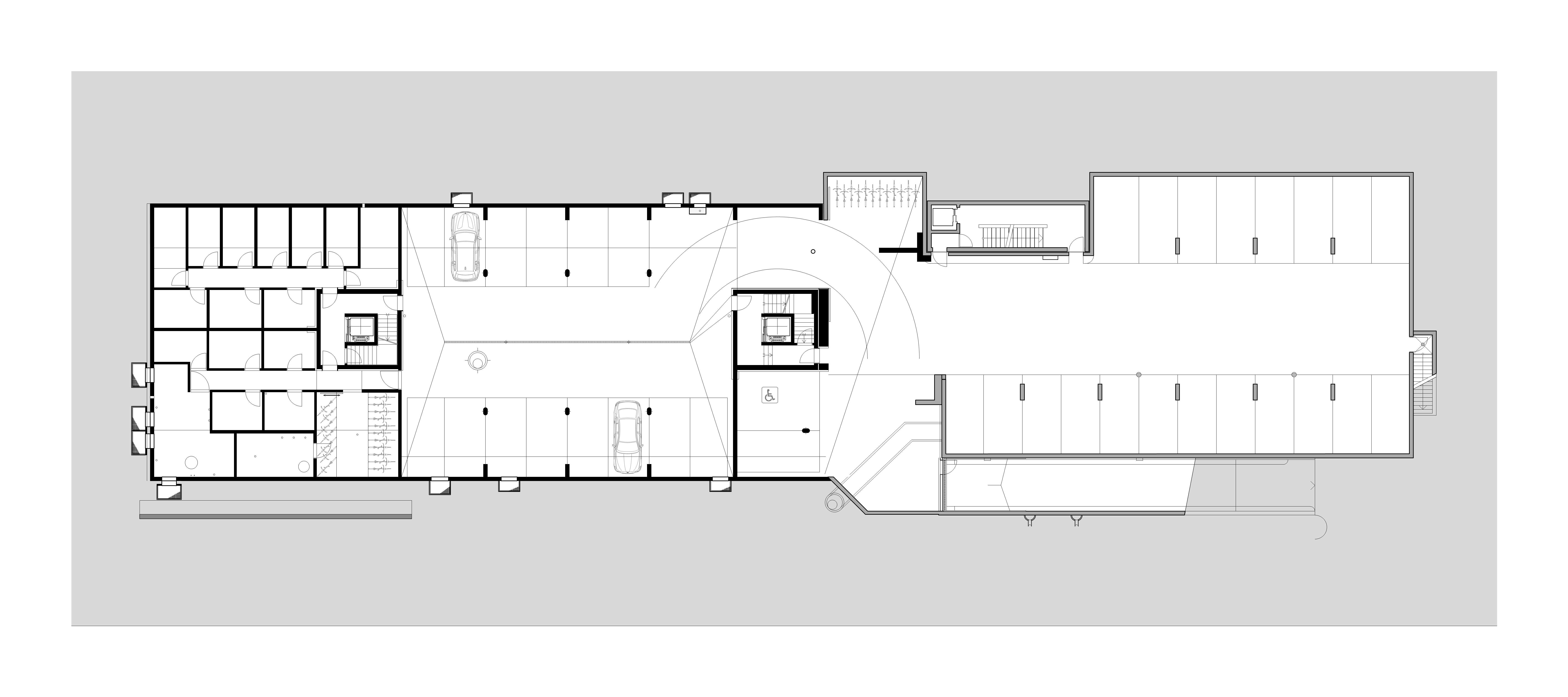
MFH Landstrasse 166/168, Wettingen
ZURÜCK